39
$719,000 Sale
Listed 19 hours ago
33345 3RD AVENUE
· 3
· 2.0
· 3
· 1896
Key Facts
Key facts for 33345 3RD AVENUE
Property Type
House, House
Parking
Garage: No, 3 parking
MLS #
R3060197
Size
1896 sqft
Basement
Finished, Full (Finished)
Listed on
-
Lot size
-
Tax
-
Days on Market
-
Year Built
-
Maintenance Fee
-
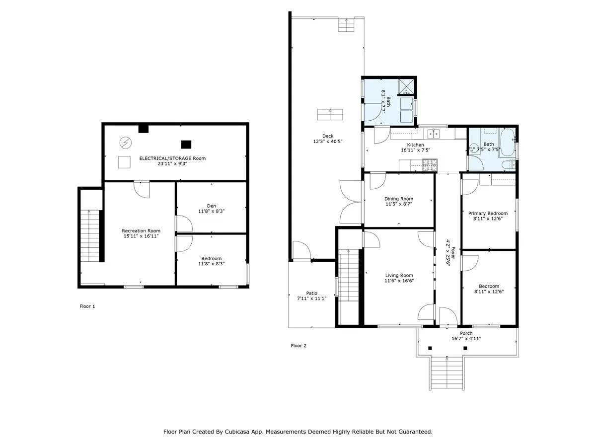
Description
Welcome to this beautifully renovated 1910 character home in the heart of Mission that blends timeless charm with modern touches. Thoughtfully updated inside and out, this 3 bedroom, 2 bathroom home features a stunning custom kitchen with stainless steel appliances, sleek countertops, and a gas rang...e, along with a spa-inspired bathroom complete with a jacuzzi soaker tub. Crown mouldings, wood trim, newer vinyl windows, French doors, and pewter fixtures add to the home's elegance. The spacious, fully finished basement includes a rec room, den, bedroom and storage. Step outside to a fenced backyard oasis with large decks, lane access with space for RV parking. The bus stops right outside your door, easy access to shopping and West Coast Express. Future development potential! (id:10452)
Similar Properties (No results)
Listing courtesy of: Babych Group Realty Vancouver Ltd.
This REALTOR.ca listing content is owned and licensed by REALTOR® members of The Canadian Real Estate Association.